Module mit seitlichem Bad
Alayan bietet Lösungen zur Vermietung von Fertigbaumodulen für Kantinen und Wohnheime an, die ideal sind, um schnell funktionale und komfortable Räume zu schaffen. Dank ihrer Vielseitigkeit passen sich die Fertigbaustrukturen von Alayan perfekt an Baustellen, Arbeitslager, temporäre Veranstaltungen und Notfälle an und garantieren bezugsfertige Umgebungen mit allen erforderlichen Dienstleistungen.
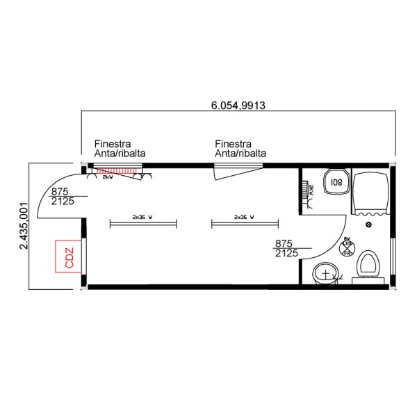
Jede Fertigkantine und jedes Fertigwohnheim wird mit isolierten Paneelen aus Polyurethan oder Mineralwolle für eine optimale Wärmedämmung hergestellt und ist mit einer CEE-zertifizierten Elektroinstallation ausgestattet. Die Module sind in verschiedenen Konfigurationen erhältlich: mit WC und Waschbecken oder komplett mit WC, Waschbecken und Dusche, je nach den Anforderungen des Projekts.
Der Mietservice für Fertigbauten von Alayan sichert schnelle Lieferungen, anpassbare Lösungen und maximale betriebliche Flexibilität und ermöglicht die Einrichtung von effizienten, sicheren und für jeden Kontext geeigneten temporären Kantinen und Wohnheimen.
Verfügbare Abmessungen
|
Außenmaße (mm)
Länge x Breite
|
Außenmaße (mm)
Höhe
|
Innenmaße (mm)
Höhe
|
||
|---|---|---|---|---|
| 6.055 x 2.435 | 2.960 | 2.700 |



