Canteen & Dormitory Modules
Alayan’s dormitory or canteen modular units are available for rent and are ideal prefabricated solutions for construction sites, events, and other temporary situations.
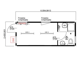
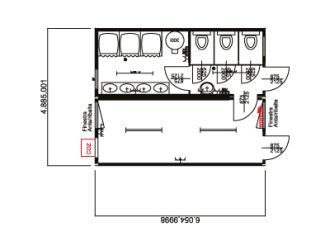
Designed to adapt to different operational contexts, these modules are offered in various sizes and configurations, available as single open-space units or internally divided with walls to create multiple rooms, including restrooms.
The ability to join them on all four sides and stack them up to three stories high allows for maximum space optimization, ensuring flexibility and functionality.
Structure and Technical Specifications
The dormitory or canteen modular units offered for rent by Alayan are ideal for creating temporary, functional, and comfortable living spaces.
Available in open-space configurations, with integrated bathroom and shower, or joined together to create larger, customized environments.
- The structure consists of welded or bolted frames, with 3 mm thick steel uprights.
- Insulation is available in polyurethane or mineral wool, with thicknesses ranging from 40 to 110 mm.
- Aluminum or PVC doors and windows, with optional shutters or Venetian blinds.
- Glazing options include 4 mm glass, double glazing with insulating gas, and shatterproof glass.
- The electrical system is certified according to CEE standards and made with IP65 rated components.
- The modules are equipped with non-slip PVC floors with a drain trap and floor or wall drains, ceramic or fiberglass sanitary ware, and water heaters from 30 to 300 liters.






